東大阪市東石切の分譲用売買土地!建物プランあり
ベルデフレスコ東石切は東大阪市東石切の分譲用売買土地です
近鉄けいはんな線新石切駅徒歩10分
東大阪市東石切の緑豊かな閑静な住宅街で景観も良く人気のエリアです。
当社では土地の販売と建物プランも用意していますので合わせてご検討ください
ベルデフレスコ東石切Ⅰの2号地のみ販売中です
ベルデフレスコ東石切Ⅱは完売いたしました。
ベルデフレスコ東石切Ⅰは2号地のみ販売しています。
周辺環境
ユニクロ新石切プラザ店まで1227m
万代新石切店まで1282m
じゃんぼ食鮮館石切まで1115m
ライフ新石切店まで1336m
東大阪市立石切小学校まで749m
東大阪市立石切中学校まで1468m
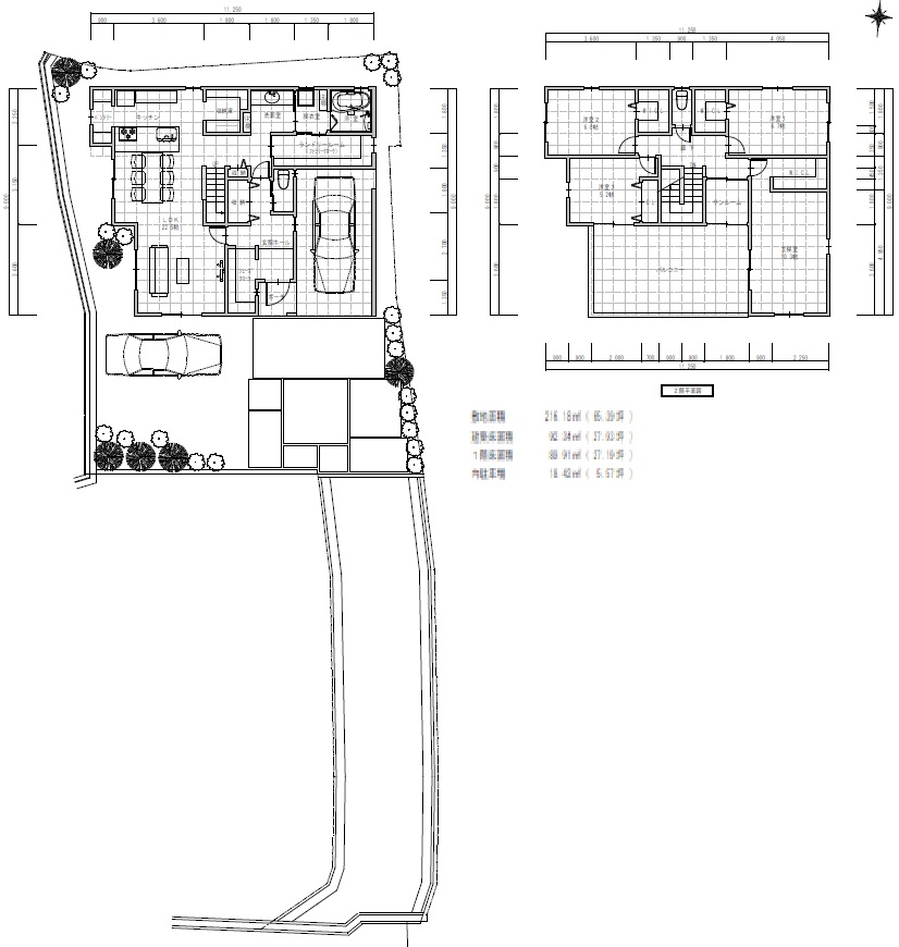
ベルデフレスコ東石切Ⅰ
区画図
| 土地面積 | 294.84㎡(89.19坪)(実測) |
|---|---|
| 地目 | 宅地 |
| 道路 | 南4m幅(接道幅7.5m) |
| 権利 | 所有権 |
| 都市計画・用途地域 | 1種中高 |
| 建ぺい率・容積率 | 60%・200% |
| その他制限 | 準防火地域 |
| 建築条件 | なし |
| 設備 | 設備:公営水道、本下水、都市ガス |
|---|---|
| 現況 | 更地 |
| 引き渡し | 即引渡し可 |
| 備考 | ベルデフレスコ東石切Ⅰ全2区画 【1号地】/分譲中/私道負担:無/総区画数:2区画/販売区画数:1区画/2沿線以上利用可/土地50坪以上/更地渡し/即引渡し可/陽当り良好/閑静な住宅地/建築条件なし/緑豊かな住宅地/眺望良好/小学校 徒歩10分以内/建物プラン例有り/周辺交通量少なめ |
ベルデフレスコ東石切Ⅰの建物プラン
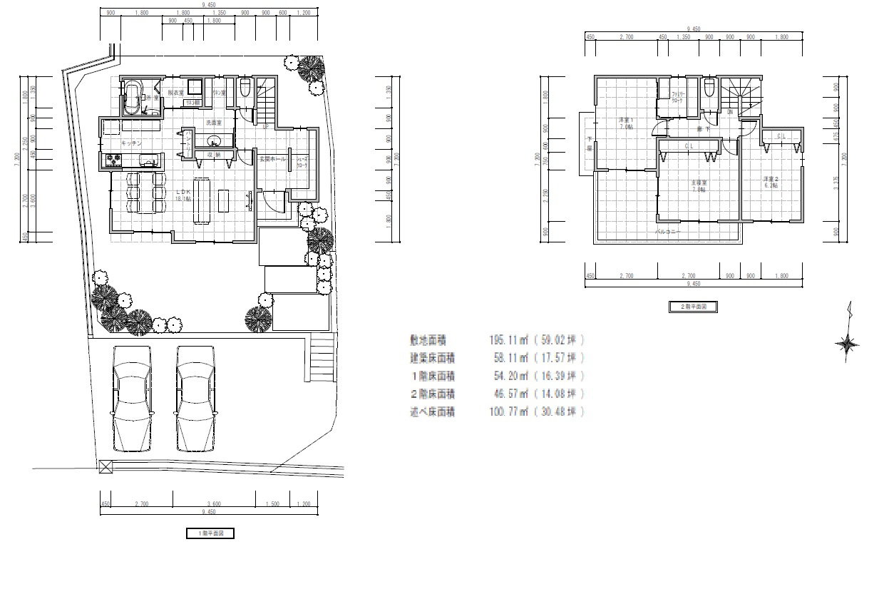
ベルデフレスコ東石切Ⅱ 完売いたしました
ベルデフレスコ東石切Ⅱは完売いたしました
| 土地面積 | 130.1㎡(39.35坪)(実測) |
|---|---|
| 地目 | 宅地 |
| 道路 | 西4m幅(接道幅10.9m) |
| 権利 | 所有権 |
| 都市計画・用途地域 | 1種中高 |
| 建ぺい率・容積率 | 60%・200% |
| その他制限 | 準防火地域 |
| 建築条件 | なし |
| 設備 | 設備:公営水道、本下水、都市ガス |
|---|---|
| 現況 | 更地 |
| 引き渡し | 即引渡し可 |
| 備考 | ベルデフレスコ東石切Ⅱ全区画 【2号地】/分譲中/私道負担:10.91㎡/総区画数:2区画/販売区画数:1区画/2沿線以上利用可/更地渡し/即引渡し可/閑静な住宅地/建築条件なし/眺望良好/小学校 徒歩10分以内/建物プラン例有り/周辺交通量少なめ |
区画図
| 土地面積 | 130.1㎡(39.35坪)(実測) |
|---|---|
| 地目 | 宅地 |
| 道路 | 西4m幅(接道幅10.9m) |
| 権利 | 所有権 |
| 都市計画・用途地域 | 1種中高 |
| 建ぺい率・容積率 | 60%・200% |
| その他制限 | 準防火地域 |
| 建築条件 | なし |
| 設備 | 設備:公営水道、本下水、都市ガス |
|---|---|
| 現況 | 更地 |
| 引き渡し | 即引渡し可 |
| 備考 | ベルデフレスコ東石切Ⅱ全区画 【2号地】/分譲中/私道負担:10.91㎡/総区画数:2区画/販売区画数:1区画/2沿線以上利用可/更地渡し/即引渡し可/閑静な住宅地/建築条件なし/眺望良好/小学校 徒歩10分以内/建物プラン例有り/周辺交通量少なめ |
ベルデフレスコ東石切Ⅱの建物プラン





